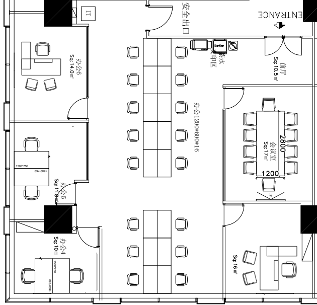
香格里拉中心 面积:218.36平方米 布局:4间办公室,1间会议室,12-16人工位
房源编号:P038765  2024-06-18发布
虚假举报
24020元/月
单价 110元/㎡/月
关注

甲级

精装

218.4

面积

中层 南

共23层

可注册 有免租期 中心商务区 地铁覆盖 视频房
类型 办公
建成 -
片区江岸区台北香港路
产权 商品房(50年)
地址湖北省武汉市江岸区高雄路183号地图周边
方黎
方黎
13317173511

楼盘详情

楼盘:
香格里拉中心
开 发 商:
-
车位:
-
停车费:
-
供暖类型:
-
用水类型:
-
用电类型:
-
燃气费用:
-
房间描述房源优势为:可注册,有免租期,中心商务区,地铁覆盖,视频房